Objektart
Adresse
Objektdaten
Informationen
Ausstattung
Details
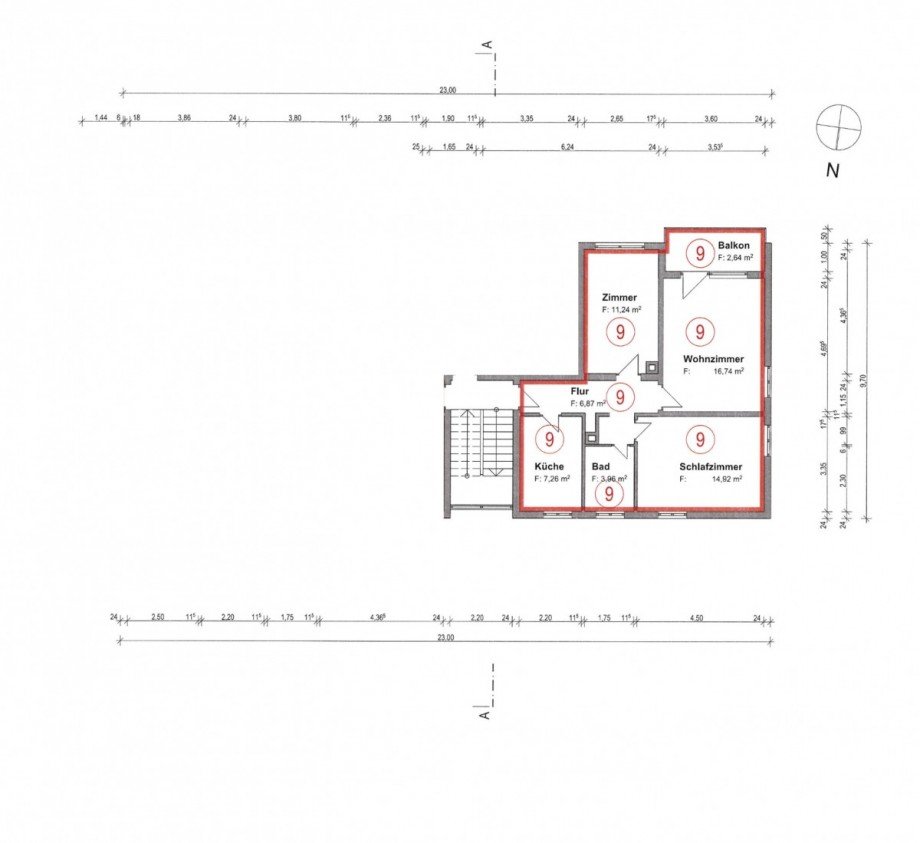
Zum Verkauf steht eine schöne 3-Zimmer-Wohnung, welche 2025 von Grund auf saniert wurde. Einziehen und wohlfühlen!
Folgende Sanierungen wurden durchgeführt.
1. Elektroinstallation: innerhalb der Wohnung komplett erneuert, E-Check nach VDE durchgeführt
2. Wasser- bzw. Abwasserleitungen, Sanitär, Heizkörper
- Abflussrohr zwischen Bad und Küche erneuert
- Frischwasserstränge im Haus vom Keller ausgehend erneuert
- Kaltwasser- und Warmwasserverrohrung innerhalb der Wohnung neu
- Bad: Doppelwaschbecken, Badewanne, Heizkörper und Wand-WC inkl.
- Vorwandelement neu
- Bad und WC neu gefliest
- Heizkörper in der ganzen Wohnung neu
- neuer Warmwasserboiler von Bosch
3. Wände, Böden, Türen, Fenster
- Wände verputzt (Feinputz 1mm) und gestrichen
- Decken gestrichen
- Wohnung mit Laminat ausgelegt, in der Küche Vinyl
4. Türen
- Zimmertüren und Wohnungseingangstüren inkl. Zargen neu
5. Küche
- maßgefertigte Einbauküche neu
- Alle Elektrogroßgeräte neu
Energieausweis (Bedarfsausweis)
180,50 kWh / (m²*a) Endenergiebedarf
180,50 kWh / (m²*a) Endenergiebedarf
180,50 kWh / (m²*a) Endenergiebedarf
Weitere Informationen
| Wesentlicher Energieträger | Gas |
| Energieausweis Ausstelldatum | 2023-07-04 |
| Energieausweis gültig bis | 03.07.2033 |
| Energieausweis Jahrgang | ab dem 1.5.2014 |
| Energieausweis Werteklasse | F |
| Energieausweis Baujahr | 1959 |
| Energieausweis Gebäudeart | Wohngebäude |
| Heizung | Zentralheizung |
| Befeuerung | Gas |
Ich bin damit einverstanden, dass mir Karten von Google angezeigt werden. Es gelten die Datenschutzbedingungen von Google (https://policies.google.com/privacy).
Ich bin einverstanden