Objektart
Adresse
Objektdaten
Informationen
Ausstattung
Details
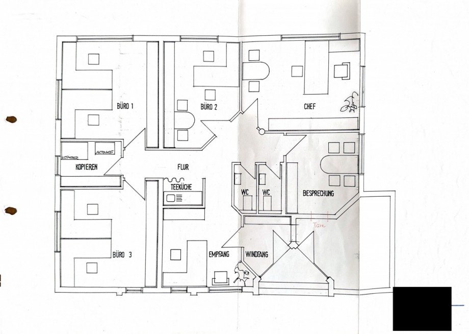
Zum Verkauf steht eine Gewerbeeinheit in sehr zentraler Lage von Winnenden. Die aktuelle Mieterin verlässt die Räumlichkeiten zum Ende des Jahres 2025. Die Kündigung liegt bereits vor.
Der Preis in Höhe von 279.000 EUR versteht sich inklusive 4 Tiefgaragenstellplätze und 2 Kellerräumen.
Bemaßte Pläne sowie alle weiteren relevanten Unterlagen können wir Ihnen gerne zur Verfügung stellen.
Die gesamte Rücklage des Hauses beträgt 66.748,15 EUR.
Lagebeschreibung
Die Gewerbeeinheit befindet sich in zentraler Lage in Winnenden, nur wenige Gehminuten vom Stadtzentrum entfernt. Das Umfeld ist geprägt von Wohnbebauung.
Winnenden zählt rund 28.000 Einwohner und gilt als wirtschaftsstarker Standort im Rems-Murr-Kreis, ca. 20 km nordöstlich von Stuttgart. Eine hervorragende Anbindung ist über die S-Bahn (Linie S3 nach Stuttgart/Backnang), die B14 sowie die A81 gegeben. Einkaufsmöglichkeiten, Gastronomie und Dienstleistungen befinden sich in direkter Nähe.
Aktuell Gewerberaum. Nutzungsänderung muss selbst bei der Stadt Winnenden eingereicht werden. Zustimmung der Eigentümergemeinschaft in der ETV 2025 liegt vor. Um die Umwandlung abzuschließen, muss die Teilungserklärung noch angepasst werden.
Energieausweis (Bedarfsausweis)
142 kWh / (m²*a) Endenergiebedarf
142 kWh / (m²*a) Endenergiebedarf
142 kWh / (m²*a) Endenergiebedarf
Weitere Informationen
| Wesentlicher Energieträger | Gas |
| Energieausweis Ausstelldatum | 2019-09-12 |
| Energieausweis gültig bis | 11.09.2029 |
| Energieausweis Jahrgang | ab dem 1.5.2014 |
| Energieausweis Werteklasse | E |
| Energieausweis Baujahr | 1992 |
| Energieausweis Gebäudeart | Wohngebäude |
| Heizung | Zentralheizung |
| Befeuerung | Gas |
Ich bin damit einverstanden, dass mir Karten von Google angezeigt werden. Es gelten die Datenschutzbedingungen von Google (https://policies.google.com/privacy).
Ich bin einverstanden